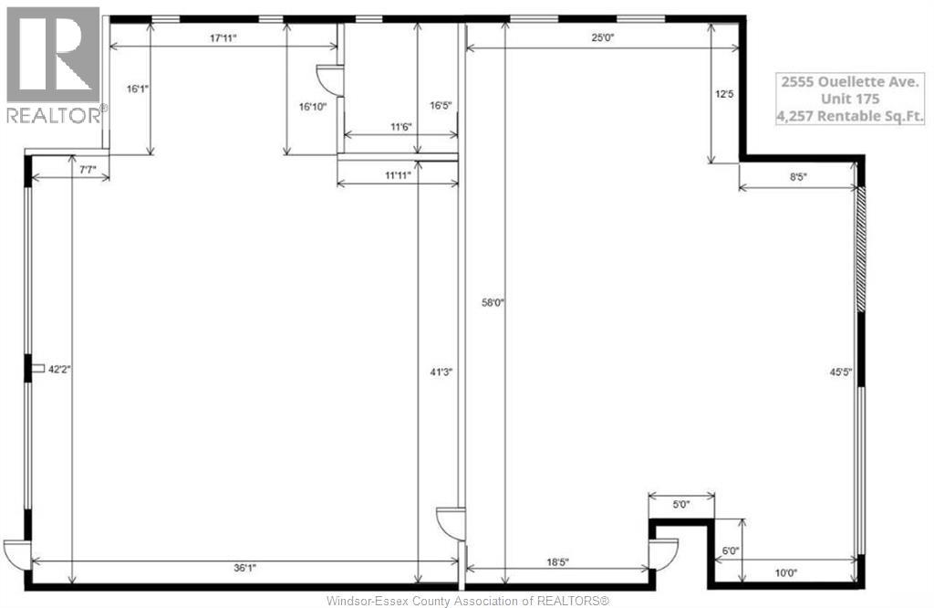
2555 OUELLETTE AVENUE Unit# 175 - $12.00

Grocery Stores
Schools
Restaurants
Gas Stations
Banks
Parks
Transit
Police
Fire Station
Place of Worship
Please select an amenity above to view a list.

2555 OUELLETTE AVENUE Unit# 175,Windsor - $12 - Directions


  Request Information    Mortgage Calculator    Get Listing Brochure    Return to Listings  

Property Specs:

Lease$12.00
CityWindsor, ON
Address2555 OUELLETTE AVENUE Unit# 175
Listing ID25031340
FlooringConcrete
Land Size290 X
StatusFor lease

Extended Features:

Ownership FreeholdCooling Air ConditionedHeating Forced air, FurnaceHeating Fuel Natural gas

Details:

This spacious 4,257 sq. ft. professional office suite with garage door is now available for lease. Situated in a central, high-demand location within a prestigious office building, it's surrounded by a variety of complementary businesses and professional services. Enjoy easy access to a wide range of nearby restaurants, shops, and amenities, providing convenience for both employees and clients. Utilities are included in the additional rent. (id:4555)

(519) 972-1299
(519) 734-5656

Have a Question?


LISTING OFFICE:
Royal LePage Binder Real Estate, Terry Gouin
,
Royal LePage Binder Real Estate, Bill Mastronardi

Comments / Live Discussion


Loading...